3044am永利集团专业生产一体化净水器设备
产品服务 • 品类齐全非标设计、制造能力 满足需求

不锈钢砂水分离器


概述
       螺旋式砂水分离器适用于污水处理厂的沉砂池,是污水中有机砂的分离及提升的一体化设备,可分离出粒径≥0.2mm的颗粒,有较高的分离效率,设备采用无轴螺旋,无水中轴承,具有重量轻、结构紧凑、运行可靠、安装方便等特点,是一种合适的砂水分离设备。

螺旋式主要机构及工作原理
       螺旋砂水分离器由驱动装置、螺旋体、水箱、U形槽、衬条等部件组成。砂水分离机本体由砂水分离槽和螺旋输砂槽组成。水槽的大分离流量和螺旋输砂能力分离槽内停留时间>2min,并具有足够的余量。
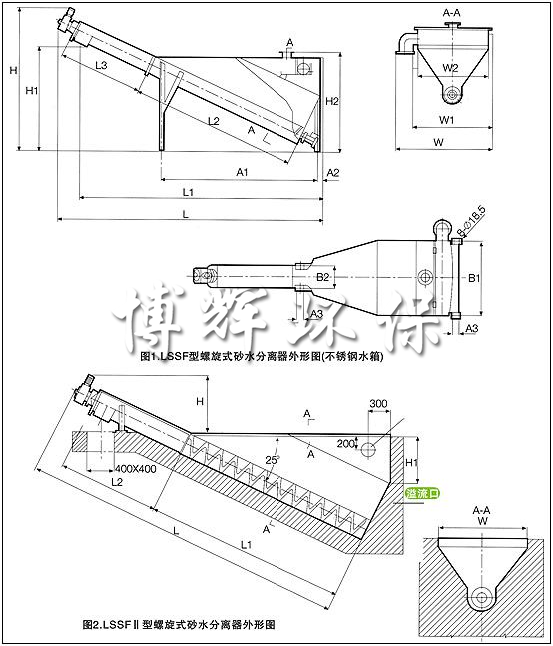
1.1 主要结构:
       ⑴、驱动装置装采用轴装式减速机与螺旋轴直联。在输砂槽顶部装有支承轴承,螺旋轴轴承有可靠的密封和良好的润滑条件,该轴承装置能防水、防尘,并便于润滑和维修。螺旋体的驱动装置采用品牌的齿轮减速电机,服务系数不小于1.6。齿轮为合金钢,渗碳处理,齿面硬度不低于HRC58~62。电机应适用于户外使用,防护等级IP65,电压等级为三相、380v、50Hz,F级绝缘,电机的额定功率应高于实耗功率10%以上。
       ⑵、螺旋轴螺旋直径为Φ280mm,采用无轴螺旋,能保证物料输送流畅无堵塞。
       ⑶、螺旋输砂槽为U型断面,螺旋槽直径为320mm,安装角度约25°,除进料口敞开外,其余部分均为加平盖密封结构,为可拆方式,上端设出料口,高出地面约1.75m。螺旋输送槽出料口高于分离器槽顶300mm以上。
       ⑷、螺旋输砂槽与水箱为整体结构,有足够的强度和刚度,无渗漏。整体结构由型钢支撑固定在混凝土基础上。
1.2 工作原理:
       来自沉砂池的砂水混合物进入砂水分离槽中,进行砂水分离,水溢出池外,砂沉到槽底。转动的螺旋轴将砂沿25°螺旋槽输送到顶部出料口,砂在输送过程中进一步分离,从而保证出料口的砂含水率不大于60%。

主要零件材料
       1、槽本体(包括密封盖)材料为不锈钢304。
       2、螺旋体材料为耐磨耐蚀特种钢。
       3、螺栓等紧固件材料为不锈钢316。

螺旋式砂水分离器构造及工作过程
       (1)螺旋式砂水分离器由无轴螺旋、衬条、U 型槽、水箱、导流板、出水堰和驱动装置组成。
       (2)砂水混合物从分离器一端顶部输入水箱,混合液中重度较大的,如砂粒等将沉积于槽型底部,在螺旋推动下,砂粒沿斜置的槽底提出升,离开液面后继续推移一段距离,在砂粒充分脱水后经排砂口卸至盛砂桶,而与砂水分离后的水从溢流口排出并送往厂内进水池。

螺旋式砂水分离器特点及用途
       (1)分离效率可达96%~98%,可分离出粒径≥0.2mm 的颗粒;
       (2)采用无轴螺旋,无水中轴承,维护方便;
       (3)结构紧凑,重量轻;
       (4)衬条为快装式,便于换;
       (5)螺旋轴向位置可调,便于调整其尾部和箱壁的安全间隙;
       (6)用于污水处理厂沉砂池,将沉淀池排出的砂水混合液进行砂水分离。

螺旋式砂水分离器技术参数
设备型号 长-L
(mm)
宽-B
(mm)
高-H
(mm)
高-H-1
(mm)
处理量
(m3/h)
设备容积(m3) 电机功率(kW) 脱水率(%)
SLF260 3850 1260 1850 1500 15-55 1.25 0.25 >95
SLF320 4390 1500 1950 1500 55-80 1.8 0.37 >95
SLF355 5850 1600 2400 2150 80-110 3.2 0.75 >95
SLF420 6280 1750 2550 2150 110-130 4.3 0.75 >95
工作温度 5-55℃
设备材质及防腐 Q235-FRP、Q23-衬塑、SS304、SS316

相关产品 • Products